


Montana Regional MLS / Flathead Intermountain Properties, LLC 126 Grouse Haven Way Kalispell, MT 59901
Description
30051092
$1,591(2025)
0.29 acres
Single-Family Home
2025
Modern
Flathead County
Silverbrook Estates
Listed By
Montana Regional MLS
Last checked Dec 7 2025 at 6:45 AM MST
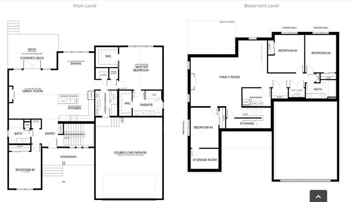
- Full Bathrooms: 3
- Dishwasher
- Microwave
- Range
- Refrigerator
- Laundry: Washer Hookup
- Silverbrook Estates
- Landscaped
- Sprinklers In Ground
- Back Yard
- Front Yard
- See Remarks
- Fireplace: 1
- Foundation: Poured
- Forced Air
- Central Air
- Finished
- Community
- Dues: $122/Monthly
- 3,057 sqft
Estimated Monthly Mortgage Payment
*Based on Fixed Interest Rate withe a 30 year term, principal and interest only
Listing price
Down payment
Interest rate
%
Your satisfaction doesn’t end when you move in. Every Westcraft Home comes with a comprehensive 1-year warranty covering materials and workmanship. This commitment to quality ensures any issues are promptly addressed, giving you peace of mind in your new home.